



Kondenzacijski kotao na lož ulje Domusa JAKA HFD 30 CONDENS OD dizajniran je za postizanje visokih performansi u vanjskim uvjetima, optimizirajući unutarnji prostor i osiguravajući učinkovito i ekološki prihvatljivo grijanje. S korisnom snagom od 28,7 kW pri 80°C/60°C, ovaj kotao se ističe naprednom kondenzacijskom tehnologijom, robusnim materijalima i otpornošću na vremenske uvjete. Idealan je izbor za one koji traže toplinsku udobnost, energetsku uštedu i pouzdanu vanjsku instalaciju.
Model JAKA HFD 30 CONDENS OD koristi kondenzacijsku tehnologiju koja povratno iskorištava toplinu iz dimnih plinova, postižući učinkovitost veću od 103% u odnosu na donju ogrjevnu vrijednost (P.C.I.). To omogućuje uštedu do 30% u usporedbi s konvencionalnim kotlovima, značajno smanjujući potrošnju goriva i operativne troškove.
Posebno dizajniran za vanjsku instalaciju, ovaj kotao ima hermetička kućišta s EPOXY premazom koja ga štite od vlage, kiše i temperaturnih promjena. Njegova nepropusnost osigurava siguran i učinkovit rad čak i u nepovoljnim vremenskim uvjetima, dok kompaktan dizajn omogućuje optimizaciju unutarnjeg prostora u domu.
Tijelo kotla izrađeno je od lijevanog željeza, materijala otpornog na habanje koji jamči dug vijek trajanja. Uz to, sadrži kondenzator od nehrđajućeg čelika koji maksimizira prijenos topline i osigurava optimalan rad dugi niz godina. Ovi visokokvalitetni materijali smanjuju potrebu za održavanjem i produžuju trajnost uređaja.
Napredna zvučna izolacija i uporaba hermetičkog plamenika čine ovaj kotao izuzetno tihim, pružajući udobnost u stambenim i vanjskim prostorima.
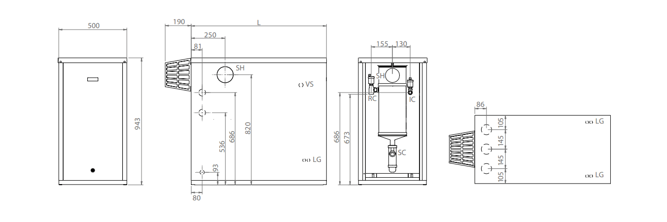
Domusa JAKA HFD 30 CONDENS OD dizajnirana je za jednostavnu montažu u bilo kojoj vrsti instalacije. Odvod dimnih plinova vrši se putem polipropilenskih cijevi, što pojednostavljuje instalaciju i smanjuje troškove. Prednja upravljačka ploča uključuje termostat protiv smrzavanja, regulacijski termostat, svjetlosni prekidač za uključivanje/isključivanje i druge funkcije za intuitivno i učinkovito korištenje.
Kotao Domusa JAKA HFD 30 CONDENS OD idealan je za obiteljske kuće i poslovne prostore kojima je potrebna učinkovita toplinska solucija prilagodljiva za vanjsku upotrebu. Njegova visoka snaga, nisko održavanje i robusan dizajn čine ga pouzdanim izborom za zahtjevne klimatske uvjete.
S Domusa JAKA HFD 30 CONDENS OD korisnik dobiva učinkovit, dugotrajan i održiv uređaj, dizajniran za maksimalnu toplinsku udobnost uz minimalan utjecaj na okoliš.